▶ 제품의 용도 및 특징
– 논두렁 기반시설 구축
– 인력절감(논두렁 다듬기에 소모되는 인력이 필요없음)
– 농업용수 대책(논물을 효율적으로 관리)

▶ 설치 품
( 단위 : 본당 )

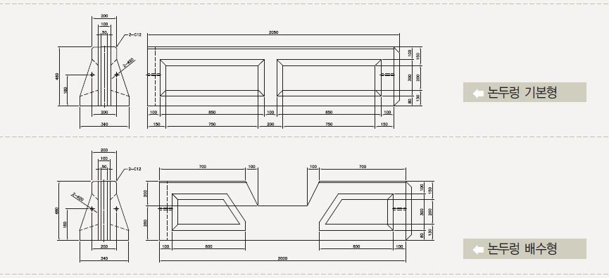
▶ 논두렁 구축용블록 모양, 치수 및 배근도


▶ 논두렁 구축용블록의 치수 및 배근

▶ 콘크리트 제품의 취급 & 시공방법
1. 하역(하차), 보관
– 콘크리트 제품은 중량물로 제품 취급시 안전사고 발생 위험이 있으므로 안전에 각별한 주의가 요구됩니다.
– 제품 하역시 하역 장비를 이용하시고 덤프 하차는 지면과 제품, 제품과 제품의 부딪힘에 의한 충격으로 파손 및 크랙 등 하자가 발생됨으로 절대 삼가 해주십시오.
– 제품 하역 작업시 전용 클램프(집게) 및 직물밧줄(web sling)을 사용 제품의 손상이 발생되지 않도록 취급에 주의하여야 한다.
– 보관 장소는 적당한 넓이의 평탄한 곳을 택하여 제품의 손상이 발생되지 않도록 한다.
– 운반도중 지나친 휨 응력이 발생되지 않도록 하여야 하며, 제품 이탈 등 낙하 위험이 있으므로 반드시 띠 바를 설치하여 이동하여야 합니다.
2. 시공
– 선제조건, 설치장소, 지반 등 현장여건 등을 시공 전에 확인 한다.
– 터파기 작업은 블록설치 위치에 작업줄눈을 설치 터파기 작업을 실시한다.
– 설치된 줄눈을 따라 블록을 설치, 설치된 블록이 수평이 유지되고 있는지 확인한다.

